Multi raked bar screen
The SMC – MULTI RAKED BAR SCREEN is the ideal machine for the pre-treatment of the waste water. It represent the best solution as a first step in a forefront depuration plant.
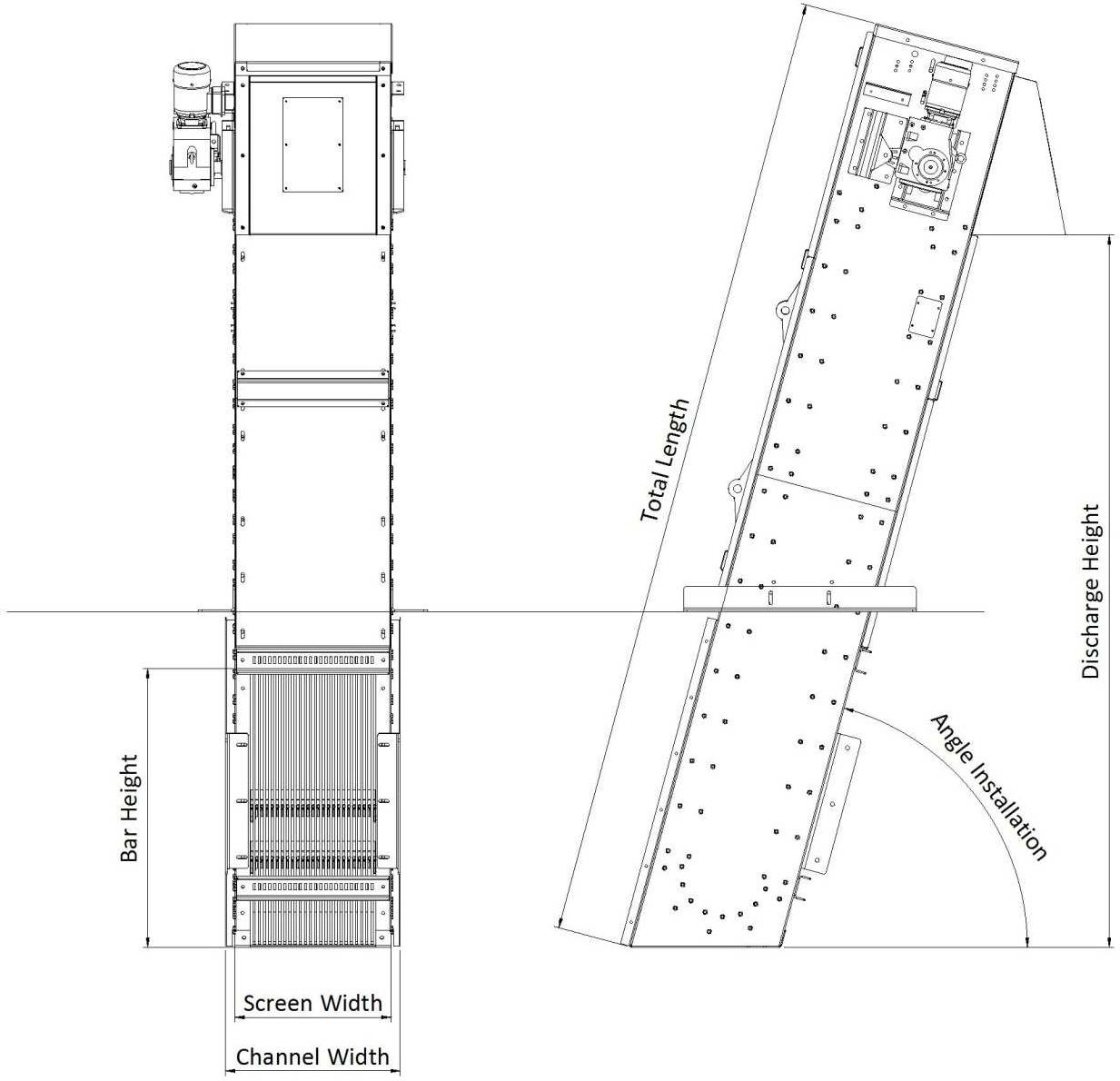
The SMC consist in a Stainless Steel frame, developed for a “in channel” installation with 75° inclination. The filtration zone, placed in the bottom part, is made by equidistant stainless steel bars.
The coarse waste present in the waste water, are blocked by the bars of the filtering zone and accumulate in the bottom of the frame until, the consequent increase of water level, active the cleaning system through rakes.
The rakes are developed to fit perfectly with the filtration bar spacing and they are connected to a transmission chain moved by the gear motor placed on the top of the machine.
When the gear motor start working, the rakes take the coarse waste from the bottom of channel and carries these until the discharge placed on the top.

The SMC can be manufactured in Stainless Steel AISI304-316 (L), and is fully customizable according to the customer needs, but anyways we offer a standard range which can help the costumer in his final choose:
Standard Dimensions
| MODEL | SMC04 | SMC06 | SMC08 | SMC10 | SMC12 | SMC14 | SMC16 | SMC18 | SMC20 |
|---|---|---|---|---|---|---|---|---|---|
| Channel width (mm) | 400 | 600 | 800 | 1000 | 1200 | 1400 | 1600 | 1800 | 2000 |
| *Total length (mm) | 3350 | 3550 | 3550 | 3550 | 3550 | 3550 | 3550 | 3550 | 4050 |
| **Discharge height (mm) | 2300 | 2300 | 2300 | 2500 | 2500 | 2500 | 2500 | 2500 | 3000 |
| Bars height (mm) | 600 | 600 | 600 | 970 | 800 | 800 | 800 | 800 | 1300 |
| *Number of rakes (n°) | 2 | 2 | 2 | 2 | 2 | 2 | 2 | 2 | 2 |
| ***Angle installation | 75° | 75° | 75° | 75° | 75° | 75° | 75° | 75° | 75° |

Outfall and lateral supports to fix the unit at the channel always included.
* Every 1000 mm of extra height of the unit, a supplementary rake is included (total maximum number of rakes 6).
** From channel bottom
*** Standard inclination




